ready to move in apartments in Irungattukottai VGn Brixton - Irungattukottai

₹25.8 Lac Onwards*

44

Towers

808

Premium Apartments

14

Acres

2

BHK

738 to 773

Sq.Ft

10+

Amenities

VGN Brixton- 2BHK Flats in Irungattukottai

Project Overview

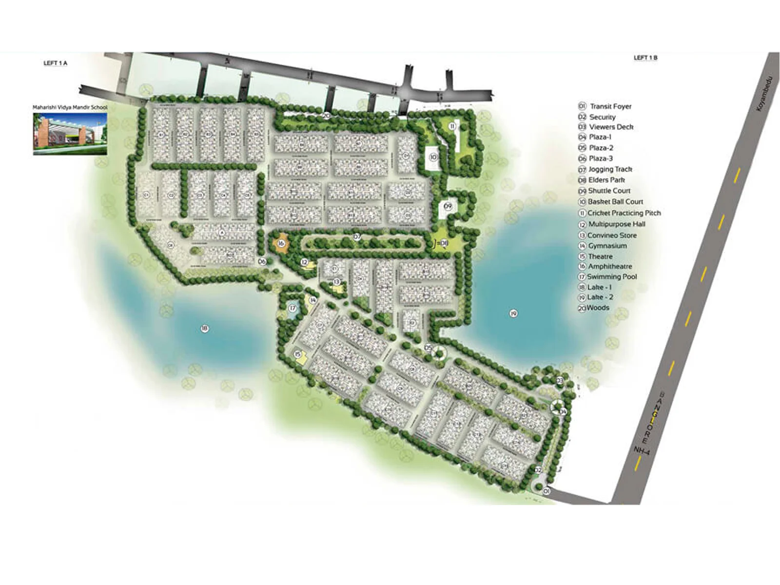
With alluring features and facilities, VGN Brixton is an affordable abode for home buyers looking for apartments for sale in Chennai - Sriperumbudur. Spread across 23 acres and a layout of 1872 housing units with a total built-up area of over 1.6 million sq. ft., the project is set to fulfill the residential housing needs in Sriperumbudur and surrounding areas. With better commuting facilities and a six-lane highway nearby, the project offers 2 BHK flats and 3 BHK flats sizes ranging from 738 sq. ft. to 1976 sq. ft., is the best living experience in this rapidly developed area.

Location Advantages

Institutions
  • Kings Engineering College - 9.5 kms
  • Rajalakshmi Engineering College - 3.5 kms
  • Maharishi Vidya Mandir School - 900 mtrs
Hospitals
  • Savitha Hospital - 4.2 kms
Nearby Locations
  • Rajiv Gandhi Memorial - 11.9 kms
Entertainment
  • Queensland Amusement Park - 5.5 kms
  • Chokhi Dhani - 4.6 kms

VGN Brixton apartment project in Chennai is located in Irungattukottai, just opposite the Hyundai Manufacturing plant, and enjoys excellent connectivity to various areas through major roads such as the Chennai-Bangalore Highway, Kundrathur-Sriperumbudur Road, Vellore-Chennai Road, and NH 48. The convenience of transport is further enhanced by Tiruvallur railway station, just 15 km away, which provides frequent train services. Irungattukottai Sipcot bus station acts as a nearby hub, connecting residents to the surrounding regions. With this strategic location and comprehensive transport options, VGN Brixton near Sriperumbudur has become an attractive choice, offering a diverse range of apartments to suit the needs of all potential homebuyers.

Enquire Now

Specifications

As a reputed builder with a substantial customer base, we take pride in presenting one of the largest and most. Read More...

Structure

  • RCC framed structure with earthquake resistant design

Paint

  • Putty with OBD for interior walls
  • Exterior wall paint with weather shield

Joinery

  • Compressed panel for the main doors.
  • Other Doors of Flush Doors
  • Powder coated aluminum fittings for all doors
  • G.I. Window with grill
  • G.I. Framed Louvers for ventilators – No grill

Flooring

A. Living / Dining:

  • 18″ x 18″ Ceramic floor tiles
  • 4″ Skirting – Ceramic tiles

B. Bedrooms:

  • 18″ x 18″ Ceramic floor tiles
  • 4″ Skirting – Ceramic tiles

C. Kitchen:

  • Granite counter with half nosing
  • Ceramic floor tiles
  • Ceramic dado (2′ above counter)

D. Service / Balcony:

  • Ceramic floor tiles

E. Toilets:

  • Ceramic floor tiles
  • Ceramic tiles up to 7′ height in shower area and 5′ height in the rest of the areas

F. Common Area:

  • Ceramic floor tiles
  • Kota stone or Ceramic tiles for staircase

Plumbing & Sanitary

Bathrooms

  • EWC: White Color
  • Wash basin : White colour
  • C.P. fittings

Kitchen

  • Sink : Stainless steel
  • Bibcock : 1 No.

Utility

  • Tap point : 1 No.

Electrical

Living

  • 1 TV point
  • 1 Telephone point
  • 2 x 6A points
  • 2 Wall light points
  • 1 Fan point
  • 1 AC point (provisional only)

Second Bedroom

  • 2 Light points
  • 1 x 6A socket
  • 1 Fan point
  • 1 AC point
  • 1 x 2 way switch points for lights

Master Bedroom – Toilet

  • 1 Light point
  • 1 Geyser point
  • 1 Exhaust fan provision

Dining

  • 1 Fan point
  • 1 Light point
  • 1 Fridge point Dining / Kitchen

Third Bedroom

  • 2 Light points
  • 1 x 6A socket
  • 1 Fan point

Second Bedroom – Toilet

  • 1 Light point
  • 1 Geyser point provision
  • 1 Exhaust fan provision

Master Bedroom

  • 2 Light points
  • 1 x 6A socket
  • 1 Fan point
  • 1 AC point
  • 1 TV point
  • 1 Telephone point
  • 1 x 2 way switch points for lights

Kitchen

  • 1 Light point
  • 1 x 16A socket – For Grinder / Mixie
  • 1 x 16A socket – For Microwave
  • 1 x 6A socket – For Chimney / Exhaust

Third Bedroom – Toilet / Common Toilet

  • 1 Light point
  • 1 Geyser point provision
  • 1 Exhaust fan provision

Utility

  • 1 Light point if applicable
  • 1 x 16A socket for Washing machine

Balcony

  • 1 Ceiling light provision

EMI Calculator

Loan Amount ()
Interest Rate (%)
Tenure (in months)

Monthly EMI

123

Total Interest Payable

1234

Total Amount

12345

T & C Apply*

Frequently Asked Questions

1. Why VGN?
With 83 years of experience in the construction field, we have earned the trust of our loyal customers, who are highly satisfied with our services. At VGN, we prioritize delivering precision and comfort, ensuring a harmonious balance of convenience and affordability in the fast-developing locality of Irungattukottai. VGN offers affordable apartments for sale in Sriperumbudur, ensuring an elevated lifestyle with enhanced connectivity, excellent transport access, and contemporary amenities for our clients to enjoy the perfect blend of quality living within their budget.
VGN Brixton is a stunningly designed gated community featuring 2 BHK flats and 3 BHK flats that range from 738 sq. ft. to 1976 sq. ft., set on an expansive 23-acre land. With its thoughtfully planned layout, the project offers a host of exclusive amenities, making it an ideal choice for your dream home within your budget. Embrace a life of comfort and convenience at VGN Brixton, where you can upgrade your lifestyle in a serene environment away from the bustling city.
Irungattukottai is closer to the Chennai-Bangalore Highway, and the residential complex is conveniently located opposite Hyundai Motor India Limited's manufacturing unit. The project is surrounded by prestigious companies, industries, and manufacturing units, making it a strategic and sought-after destination for residents seeking proximity to their workplaces and seamless connectivity to various areas in the surroundings. With the advantage of the location, our 2 BHK flats in Sriperumbudur offer a unique blend of comfort, convenience, and accessibility, making them an ideal choice for modern living.
The residential project enjoys a prime location, situated right on the Chennai-Bangalore Highway in Irungattukottai. It boasts a convenient position located right opposite the Hyundai Manufacturing Plant, adding to its strategic location significance. The Madras International Circuit is one of the prominent landmarks close to VGN Brixton in Irungattukottai, and this adds an exciting dimension to the area, providing residents with the unique advantage of being near such iconic venues, thus making this apartment community an ideal choice for anyone looking to buy a flat for sale in Chennai.
VGN Brixton spans 23 acres with 10+ world-class amenities, including a convenience store, gym, home theater, indoor games, and more. The residents can relish a peaceful lifestyle with a handful of facilities right at their doorstep for harmonious comfort. For anyone looking to buy a flat for sale in Chennai, VGN Brixton is an ideal choice for their dream home.
The EHS (Environment, Health, and Safety) system at VGN is designed to foster improvement through a continuous process of observation, inspection, and internal and external auditing, ensuring our EHS performance is consistently measured during every construction project against predetermined standards. We firmly believe that effective and successful business management hinges on excelling in the areas of health, safety, and the environment. By prioritizing EHS, we safeguard the well-being of our workforce and contribute to creating a sustainable environment.
VGN has been delivering homes that consistently exceed high standards of quality for years by integrating premium components and employing top-notch construction methods. According to VGN, the growth of a company hinges on the excellence of its goods and services. To achieve this, we have curated a strong team dedicated to conducting regular quality audits through both internal and external organizations, cementing our position as a trusted and reliable builder in Chennai to buy exceptional homes for our valued customers.

Explore Our Other Projects